千駄木第5駐車場
【時間貸し併設】
- 920円 / 日
- 周辺写真
- ストリートビュー
| 住所 |
※住所をナビに入れても正しく表示されない場合があります。 |
|---|---|
| タイプ | 平置き舗装 |
| 屋根 | なし |
| 対応車種 |
普通車/コンパクトカー/軽自動車 車幅170cmまでを推奨 |
| 車室サイズ |
※サイズを必ずご確認ください。
|
| 車室番号 |
予約完了メールまたはマイページの予約詳細よりご確認ください。 |
| サービス |
各種サービスの説明 |
| 注意事項 |
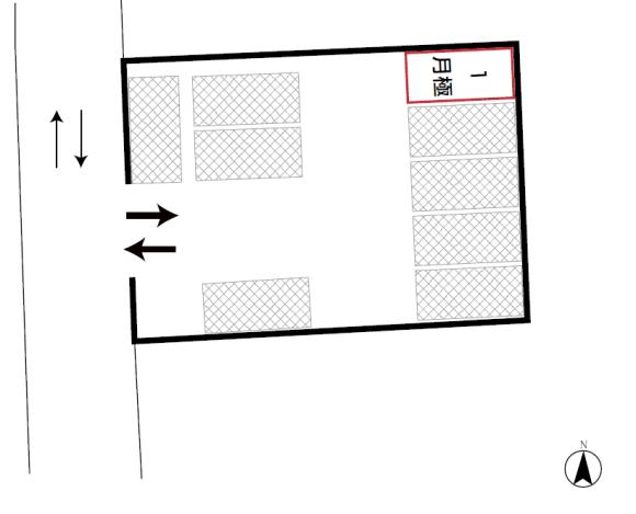
■地面に機器がない、月極の駐車スペースをご利用ください。 ■誤って時間貸の駐車スペースをご利用された場合、返金はできかねます。 ■付近の駐車スペースに月極契約が入っておりますので、必ず指定された場所の枠線内に駐車してください。 ■駐車スペース後方に壁がありますので、駐車時やトランク開閉時など接触にご注意ください。 ■駐車場周辺の道路が狭くなっておりますので、運転にご注意ください。 ■駐車場が住宅街にありますので、アイドリングや騒音などにご配慮くださいますようご協力お願いします。 ■駐車場の住所で検索しても、カーナビや地図アプリでは正確に表示されない可能性がございます。利用駐車場の地図や写真をご確認の上でお越しください。 |
ID 32039
地図
周辺の優待サービス
近くに割引や特典のある施設があります。
タイムズのBご予約時に入会いただく、タイムズクラブ会員ならどなたでもご利用できます。
空き状況・利用可能時間・料金
料金は1日単位の料金です。
予約可能な日数は駐車場により異なります。(最大14日)
※以降の空き状況は毎日0:00に1日ずつ更新されます。
予約の空きがありません
利用者レビュー(全0件)
-
- 満足度:
-
まだ駐車場のレビューはありません。
駐車場情報・お知らせ
<<月極契約可能な駐車場をお探しの方へ>>
「タイムズの月極駐車場検索」にて検索してください。
契約の空き状況をご確認いただけます。
https://times-info.net/monthly/
周辺の予約できる駐車場 地図から探す
周辺の時間貸駐車場
近隣エリアの予約できる駐車場を探す
※法人入会は、別途タイムズビジネスカード発行手数料がかかります。
全体写真
車室写真
周辺写真
その他1
各種サービスの説明
- 宿泊利用
-
以下いずれかの場合に、24時を跨いでクルマを駐車することができます。
- 1. 連続する2日以上を予約した場合
- 2. 翌日の特定時刻まで駐車可と注意事項に記載がある場合
- ※入出庫は、利用可能時間内に限ります。
- ※宿泊料金を頂く場合があります。注意事項をご確認ください。
- 再入庫
-
利用時間内であれば、入庫後にクルマの出し入れが可能です。
※再入庫の回数に制限がある場合があります。駐車場の注意事項をご確認ください。
- 24h入出庫
-
利用日中は、24時間入出庫が可能です。
- ※前面道路の交通規制などにより、入出庫不可の時間帯がある場合があります。
- ※アイコンがグレー表示でも、日によって24時間入出庫が可能な場合があります。
- 適格請求書発行
-
現在予約可能となっている期間は適格請求書の発行が可能です。
この機能はログイン後ご利用になれます。
-
タイムズクラブにまだご入会されていない方もこちら
この機能はログイン後ご利用になれます。
-
タイムズクラブにまだご入会されていない方もこちら
空車お知らせメールを設定しました
空車お知らせメール設定失敗
誠に申し訳ございませんが、空車お知らせメールの設定中にエラーが生じました。
少し経ってから再度ご利用ください。
エラーが発生しました。
-
しばらく時間を空けてからやり直してください。
お気に入り登録の上限に達しました。
-
お気に入り登録は最大100件まで登録できます。新しく追加する場合は、登録済みのお気に入りを解除してください。


