ビレッジハウス雲州平田駐車場
【雲州平田駅 徒歩30分】
- 300円 / 日
- 周辺写真
- ストリートビュー
出雲市立さくら小学校近く!学校行事の参加やお子様の送り迎えに便利!利用可能時間内ならクルマの出し入れ自由!
| 住所 |
島根県出雲市東福町243-47ビレッジハウス雲州平田(Google Maps) ※住所をナビに入れても正しく表示されない場合があります。 |
|---|---|
| タイプ | 平置き舗装 |
| 屋根 | なし |
| 対応車種 |
普通車/コンパクトカー/軽自動車 車幅200cmまでを推奨 |
| 車室サイズ |
※サイズを必ずご確認ください。
|
| 車室番号 |
予約完了メールまたはマイページの予約詳細よりご確認ください。 |
| サービス |
各種サービスの説明 |
| 注意事項 |
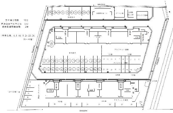
※レイアウトが見えにくい可能性があります。必ず現地にて駐車位置を確認してください。 ※広い敷地のため、駐車前に駐車位置(指定区画番号)を確認してください。 ※指定区画以外には月極契約者がいますので、必ず指定区画を確認してお停めください。 ※周辺住宅のご迷惑にならないよう、アイドリングストップにご協力をお願いします。 ※団地内は徐行運転で安全に通行をお願いします。 |
ID 58913
地図
空き状況・利用可能時間・料金
料金は1日単位の料金です。
予約可能な日数は駐車場により異なります。(最大14日)
※以降の空き状況は毎日0:00に1日ずつ更新されます。
利用者レビュー(全0件)
-
- 満足度:
-
まだ駐車場のレビューはありません。
周辺施設までのアクセス
近隣エリアの予約できる駐車場を探す
※法人入会は、別途タイムズビジネスカード発行手数料がかかります。
全体写真
車室写真
周辺写真
その他1
その他2
各種サービスの説明
- 宿泊利用
-
以下いずれかの場合に、24時を跨いでクルマを駐車することができます。
- 1. 連続する2日以上を予約した場合
- 2. 翌日の特定時刻まで駐車可と注意事項に記載がある場合
- ※入出庫は、利用可能時間内に限ります。
- ※宿泊料金を頂く場合があります。注意事項をご確認ください。
- 再入庫
-
利用時間内であれば、入庫後にクルマの出し入れが可能です。
※再入庫の回数に制限がある場合があります。駐車場の注意事項をご確認ください。
- 24h入出庫
-
利用日中は、24時間入出庫が可能です。
- ※前面道路の交通規制などにより、入出庫不可の時間帯がある場合があります。
- ※アイコンがグレー表示でも、日によって24時間入出庫が可能な場合があります。
- 適格請求書発行
-
現在予約可能となっている期間は適格請求書の発行が可能です。
この機能はログイン後ご利用になれます。
-
タイムズクラブにまだご入会されていない方もこちら
この機能はログイン後ご利用になれます。
-
タイムズクラブにまだご入会されていない方もこちら
空車お知らせメールを設定しました
空車お知らせメール設定失敗
誠に申し訳ございませんが、空車お知らせメールの設定中にエラーが生じました。
少し経ってから再度ご利用ください。
エラーが発生しました。
-
しばらく時間を空けてからやり直してください。
お気に入り登録の上限に達しました。
-
お気に入り登録は最大100件まで登録できます。新しく追加する場合は、登録済みのお気に入りを解除してください。